It's happening
it happened
The prelude to this chaos is here. I hath been given a cookie and I hath taken the entire jar.
Hot tip: If you don’t want all the demolition details, scroll to the kitchen mockups, those are fun, there is a griefy bit in the middle if you’re interested in that, and then I have some links at the bottom to stuff I’m enjoying/consuming lately.
On to the post:
Last Friday, April 12th, my sister confirmed she was going to be able to come up and help me with kitchen demo. I utilized some comp time hours at work to get the kitchen and laundry room cabinets packed up before she arrived. I also begged my super unenthusiastic kids to help move furniture, boxes, and bins out to the shop so we could set up our temporary kitchen in the front room.
Cooking on a camp stove while camping? Fun. Cooking on a camp stove while destroying half your house? Less fun.
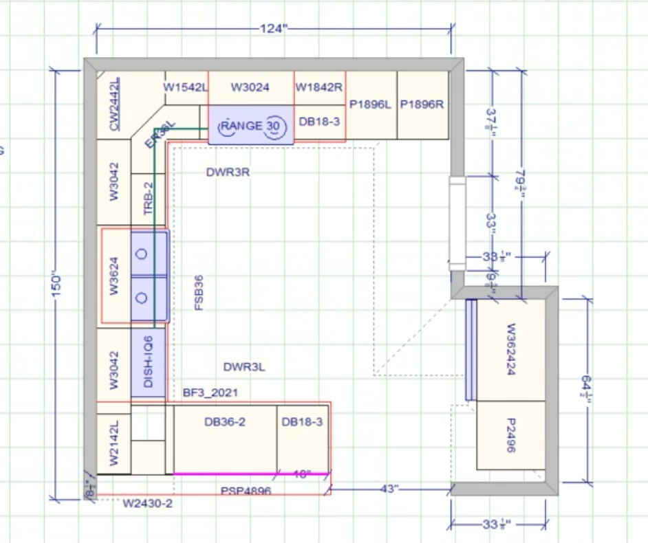
Preliminary work prior to bashing everything out with a reciprocating saw and air hammer included consultations with various kitchen experts to nail down the floor plan.

Here’s where we landed. The 79” (plus a fraction I can’t make out because I don’t know where my glasses are) wall in the upper right w/ the door in it is the wall between the kitchen and laundry room that is (currently! as in today!) getting moved. As such, I won’t know if the back wall is really 124” until it’s finished because houses are never square. As soon as I have that number confirmed, cabinet boxes will be ordered.
Here are some computer mockups because those are easier to visualize — ignore the ceiling, it’s vaulted in here:
The maybe 124” (give or take) back wall with the range:

The 150” wall to the left of the floor plan that divides the front room from the kitchen:

La décorateur has a trash pull out to the right of the sink but that will be a bank of drawers instead. Where will we put the trash? I don’t know, but the last time we had a trash pull out in a cabinet all my family members complained nonstop about it and the cabinet door got hella beat up. So we will continue to have our trash receptacle out in the open like Philistines.
Here is the 72+something” ‘will be a pocket door’ wall with the same fridge/cupboard set up we had before:

And, drumroll please, here is the peninsula, freed of its space-stealing sink. The single occasion once a year I make cinnamon rolls and need to roll out dough, I’ll be so happy:

Prior to ripping out the old kitchen, I also tried REALLY HARD to sort out whether or not to just keep the old cabinets, reconfigure them, and paint them (again). It definitely would have saved some pennies, but it also would have made me sad. The old cabinets are made of soft poplar, dent/fray really easily on the edges & corners, and wasted a lot of space with the way they were built. I was also so tired of the MDF insets warping with moisture (though I could have ordered new solid-wood doors).
I got some quotes from local cabinet makers to the tune of 17k+ and decided to go for a hybrid model in order to save a bunch. I’m ordering boxes and drawer units from RTA Cabinet Store but because of the limitations on custom options, will have the new pantry cabinet and old pantry cabinet custom built to better fit my slightly wonky space. All doors & drawer fronts will be made locally so they match (since the pantry areas will be too big for the available RTA doors).
I also have thousands of tile samples and choosing has been DIFFICULT, but I’ll get into that in the next post.
Okay, back to demolition:
When my sister arrived late Friday afternoon, I was prying off baseboards. This tool (not an affiliate link) + a mallet was super dreamy for this job. I labeled all the baseboards and we stacked them in the garage.
Next we got the laundry room cabinets detached from the wall and took them out to the garage as well. The tile came out shockingly easy… we still made a huge mess, but it came up in big chunks. There was a strange fiber board beneath the tile that I’d never seen before, but it came out pretty easily as well.
Our bodies were aching, but my sister began demoing the laundry wall so we could see what kind of framing we were dealing with.
I didn’t take any photos of this stage, but did film a Marco Polo for my friends which you can see here. It shows the chaos in the kitchen + the progress in the laundry room.
We went to bed very pleased with ourselves but sincerely wondering if we’d be able to walk in the morning.
We could! With some Tylenol, BenGay, stretching, and on my part, a lot of whining.
After researching on Craigslist and Facebook Marketplace, I wasn’t convinced anyone would want to come buy my cabinets, but didn’t want to just toss them in the dumpster. Even with their faults, there was a lot of value left in them. I listed some photos and on a whim posted that if anyone wanted to come help us remove the rest of them they could take everything for a steep discount.
Much to my surprise I had three inquiries right away, and one of them came with a handyman husband. It was very timely as my sister and I had been able to get all but the last corner cabinet down and could not figure out why it was stuck.

He hopped up on the counter with his reciprocating saw and helped us get the beast down. He was also a huge help in breaking out the countertops — we tried hard to save them but they were epoxied onto every possible surface and would not come free. I confess I got pretty weepy when he was helping us out; it’s been a long time since I had that super can-do male energy around and while he didn’t look anything like Eric he reminded me a lot of my husband in his younger days.
My sister and I helped him load up his trailer and he came back later that night for the rest of the cabinets. He didn’t need the cabinets that went over my washer and dryer in the laundry room, so I kept those. They can go back up and get painted pink or green or something fun.
By Saturday night this was where we were at:

Last thing we did before collapsing in bed was hook up a temporary utility sink. We hurt all over and there appeared to be some missing parts. We made it work with painters tape 😂

Surprise grief wave:
My sister left Sunday morning so I got to work on tearing out the damaged engineered wood flooring. I used an air hammer with a chisel bit and they came up pretty easy once I got the hang of it. I used a circular saw to cut a line between the kitchen/dining area and the front room where the flooring will be torn out in phase two. The circular saw is TERRIFYING, but thank you Eric for teaching me how to change blades, wear PPE, set depth, and use it without losing a digit or limb.
The kitchen floor is where Eric died and removing the flooring was surprisingly emotional. I mean, I knew it would probably be a grief situation, but I didn’t expect to cry for hours.
It probably sounds a little weird, but I laid on the spot where he died for a while and cried tracks all over the thin layer of sawdust coating my face. It was cathartic, actually.

I saved a few pieces of planking from the spot where his heart stopped beating. I don’t know what I’ll do with them, but I couldn’t just throw them away.
My plan is to inset something in the tile over the spot where Eric took his last breath. A little heart or a brass marker with his initials on it -- something we could pop out easily and replace with a regular tile if we ever move. I wrote a long time ago about the white crosses on the side of the highway (I can’t find it or I’d link). Those white crosses carry a lot more weight for me now than they did before losing Eric; I notice them and think about the grieving loved ones left behind.
Eric’s grave often feels empty and vacant, whereas our kitchen floor feels more like a white cross. Life goes on in really painful ways after a loss like ours, so marking this spot feels important.
After crying my eyes out over the flooring removal, I made an effort to scoot around with pliers to remove the hundreds of staples that were left behind (the flooring wasn’t glued down! Huzzah!) but that’s when I broke. I just could not do another thing. My body hurt, my heart hurt. I warned the kids to wear shoes in the kitchen area when they needed the sink and crawled into bed.
I don't get a lot of signs from Eric (hardly any), but once in a while I think I can feel him nearby. Sunday night was one of those nights; I don’t really know how to explain it. I felt hugged. Loved. Like he was cheering me on somehow. ❤️🩹
The rest of the week:
Wednesday the plumbers came and moved the hook ups for the washing machine, the sink (they smiled at our utility sink job), and the gas lines for the stove & dryer.
A retired tile guy I know stopped by on Wednesday as well. I'm going to help him with a logo for his non-profit and he's going to help me with tile. I can absolutely tile a floor by myself, but I am a bit nervous about making sure the tile ends up as level with the new hardwood floor in the front room. Having a pro help me out will be nice.
Thursday the electricians came and moved outlets and switches, wired for ‘real’ undercabinet lighting (I’ve been using the stick on kind that plugs in, now it’ll have a switch), and wired for a light to go under the cabinet over the sink. They’re coming back Monday after the wall is moved so they can install the needed outlets and switches there.
A hardwood flooring guy stopped by Thursday as well. His quote might be too rich for my budget, but I wanted to know what it might cost to have him do the install in the front room. I don't have his bid yet, but his wife is dropping off a sample for me later today. Installing hardwood is not something I’ve done personally, but I helped/watched Eric do it a couple of times. I think it’s something I could handle, but if the bid is reasonable I’m sure the process would go quite a bit faster.
The HVAC guys are coming Tuesday the 23rd to move the dryer vent and put in a for trues vent for the microwave/hood situation. I am looking forward not to have cooking grease blown all over the upper cabinets.
I might be crazy
I did get some bids from contractors, but ultimately decided to go this alone. Knock REALLY FIRMLY on wood, but everything is going pretty smoothly and I’m happy to save on some middle man costs. One good thing that came out of all those awful basement floods was FINALLY finding a couple of reliable companies I trust.
The goal is to get the tile floor in ASAP so we can put the washing machine, dryer, fridge, and stove back in place. We'll be living with a makeshift kitchen for a while as the cabinetry will take the longest, but I think it'll feel a lot more put together with the important pieces in place. Choosing tile has been a JOURNEY, but I’ll get into the style choices in the next post.
The current state of the union:
Yesterday, a neighbor came over and helped me demo the rest of that kitchen/laundry wall. Today he came back and built the bit of framing the electricians will need for Monday morning.

Please note the hidden cubby up high in the rafters. It’s all framed out and drywalled - it was supposed to be a niche/shelf thing that ran the whole length of the room; they are popular here. I don’t want to yuck anyone’s yum, but absolutely not, no. I do not need to decorate what is essentially my forking ceiling or have to climb up on a ladder to dust crap.
I had the builders close it all up and they were not super happy with me. It’s wired for lighting up there so I have a light switch that does nothing. The electricians are going to take that all out when they come back.
Tomorrow I’ll put together the pocket door hardware — I ordered this Rocket brand pocket door kit because the internet said it was the best one. The helpful neighbor will come back Monday as well, and help me get that in place and finish the framing.
With the new wall in place I can finalize the cabinet order and start on the tile. Woo!
Linkalicious:
If you made it through this whole thing, congratulations! Here are some things I’m enjoying lately. None of the links below are affiliate links. If you’d like to purchase any of the books, feel free to click through on my Amazon link (only AF link in the bunch) and I’ll use the pennies to buy something real exciting like batteries or lightbulbs.
SHOES: My sister-in-law is very good at what she calls “dopamine dressing” - she wears such bright happy colors and patterns. I think her instagram is private, but this is a link to her post about it. I’ve been trying to find my own way toward more cheerful, happy dressing and had these beautiful multi-colored loafers on my wishlist. They are pricey but loved how the right and left shoes were different. I couldn’t quite stomach the price, so bought these dupes with some Shop Pay app points. They arrived yesterday. I love them!
GLUTEN FREE PICKS: Four out of five need to eat gluten free in this household. It is expensive and sometimes disheartening as a lot of breads and pastas are awful.
We discovered Taste Republic at our local Natural Grocers and it is actually GOOD. It’s expensive so it’s only a once-in-a-while splurge.
Did you know Kraft makes a gluten free mac and cheese that is actually tasty? We can’t find it anywhere locally, but it is available on Amazon (not AF link).
Banza mac and cheese is also good, but pricier - do not fall for their frozen waffles. They are WEIRD.
If you have a Costco, they are carrying the gluten free BFree white sourdough sandwich bread. It won’t fool anyone who can consume regular stuff, but it’s decent. We especially like it for grilled cheese.
FOOD: Okay so I actually use my ‘food’ board on pinterest and recently cleaned it up. Here are some recipes we love and made a lot before our kitchen got blown to bits:
Mongolian Beef - I splurge for the nice flank steak from Costco and make a big batch. Served with jasmine rice & roasted broccoli, everyone loves it.
My daughter and I got very into fancy grilled cheese sandwiches a while back and this one was terrific.
I was surprised how big a hit Peruvian Chicken was. It has become a regular. I have a couple kids with that soapy/cilantro gene, so I make the green sauce without it. They pour the leftovers on everything.
Roasted cauliflower chickpea bowl - so good. The sauce is amazing. We make this a LOT. (I miss having an oven).
GRIEF AWARENESS: Amy Lin’s debut memoir, Here After is raw and gorgeous and honest. It’s a grief memoir, fair warning. Her journey is different than mine, but her words spoke to my soul. I listened to the audiobook but will be buying a physical copy to underline. I’m loving her instagram account as well.
HILAR: Speaking of instagram, Maddie Mitchell is hilarious. Her intonations remind me a LOT of the way my daughter speaks. Her insights and quips are worth a follow.
LATE TO THE PARTY: My kids finally convinced me to watch the original cartoon series, Avatar the Last Airbender. They win, I’m impressed. I’m STUNNED that this was a series on Nickelodeon (recommend Jeanette McCurdy’s book re: the Nickelodeon allegations!). The writing was so good and I cried several times. They were excited to watch the first season of the live action Avatar so we could compare. I really enjoyed the casting, costuming, and stunning visuals from the live-action series, but agree that it loses the plot a few times.
CRIME: Okay, ‘enjoying’ is the wrong word for this, but Chad Daybell’s case finally started and I’m listening and reading the live updates. He’s a local (lived about a half an hour north of me) doomsday prepper who is on trial for first degree murder, insurance fraud, and conspiracy to commit murder and grand theft in connection with the deaths of his wife Tammy Daybell, 7-year-old "JJ" and 16-year-old Tylee.
Post title & tag line courtesy of Bridesmaids 😂