Austin Development Updates — Wednesday, March 25, 2026
Good morning! Here's what's new in Austin real estate development.
📰 Today's Stories
1. I-35 Capital Express Project Advances in Austin

I-35 Capital Express, a mixed-use project, is underway along the I-35 Corridor in Central Austin. Led by TxDOT, it aims to enhance infrastructure and usability.
Officially named MyMobility35 — Capita...
2. Anita Ferrales Coy Redevelopment Progresses

Anita Ferrales Coy Facility Redevelopment, a 675-unit mixed-use project, is underway at 4900 Gonzales St, Austin. Led by The NRP Group with Hatch + Ulland Owen's design, it spans 1,135,000 sq ft.
The...
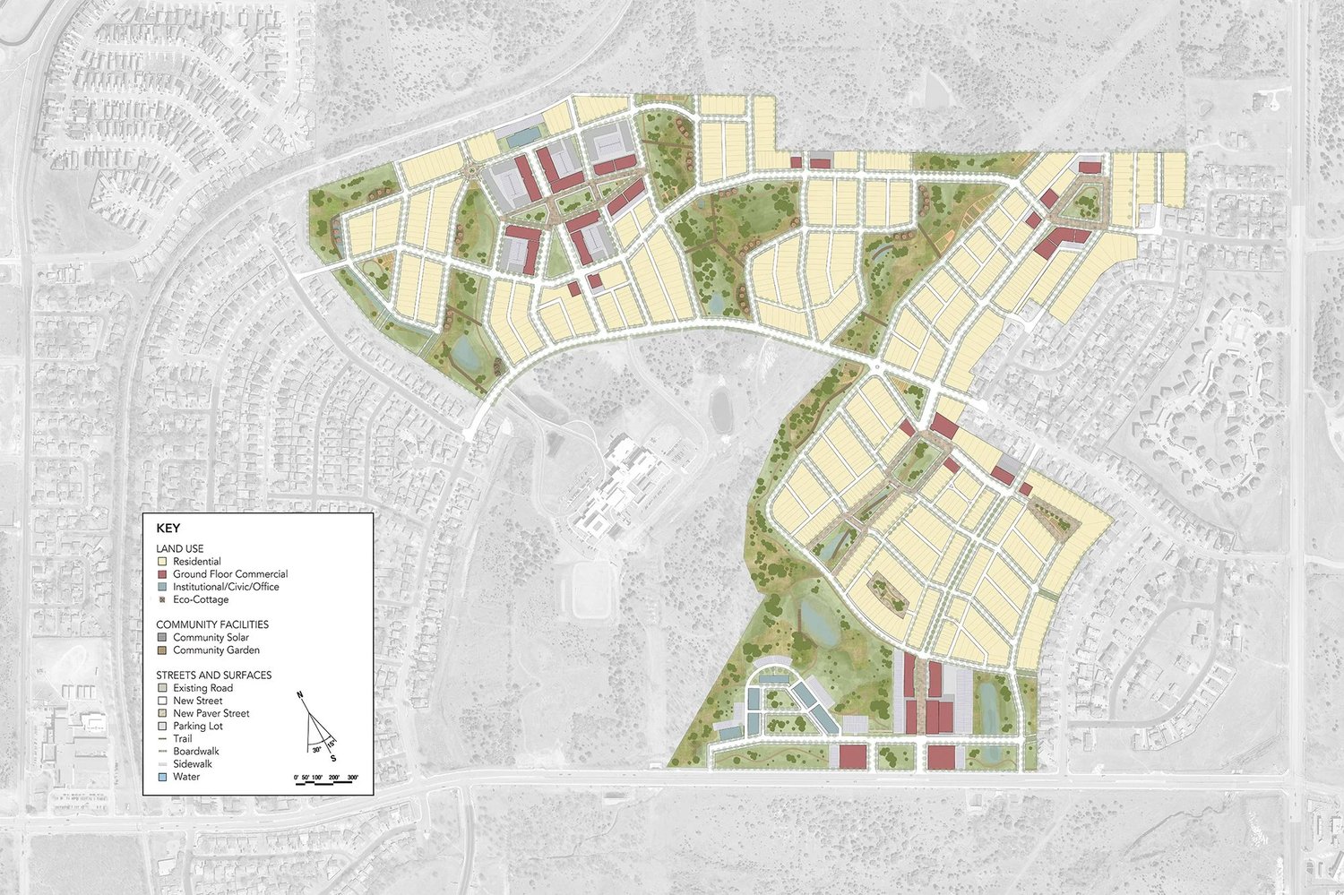
3. Colony Park Initiative Begins in Northeast Austin

Colony Park Sustainable Community Initiative, a 3000-unit mixed-use development, is under construction on city-owned land between Johnny Morris Road and Decker Lane along Loyola Lane in Northeast Aust...
📬 About This Newsletter
Groundbreak tracks real estate development across Austin. We use AI to find, research, and write about new projects so you don't have to.
View all articles on Groundbreak →
© 2026 Groundbreak. All rights reserved.
You're receiving this because you subscribed to Austin development updates.