Austin Development Updates — Tuesday, March 03, 2026
Good morning! Here's what's new in Austin real estate development.
📰 Today's Stories
1. Gabriel's Horn Mixed Use Project in Leander

Gabriel's Horn, a mixed use development, proposed at Ronald Reagan Blvd and Gabriel's Horn Rd in Leander, a suburb of Austin. It will encompass 241,000 square feet.
Designed for various uses, complet...
2. 179-Unit Mixed-Use Project Proposed in Austin

A 179-unit mixed-use project, covering 1,068,341 sq ft, is proposed in Austin at an undisclosed location. The developer and architect remain unnamed.
Amenities include a fitness center, clubhouse, re...
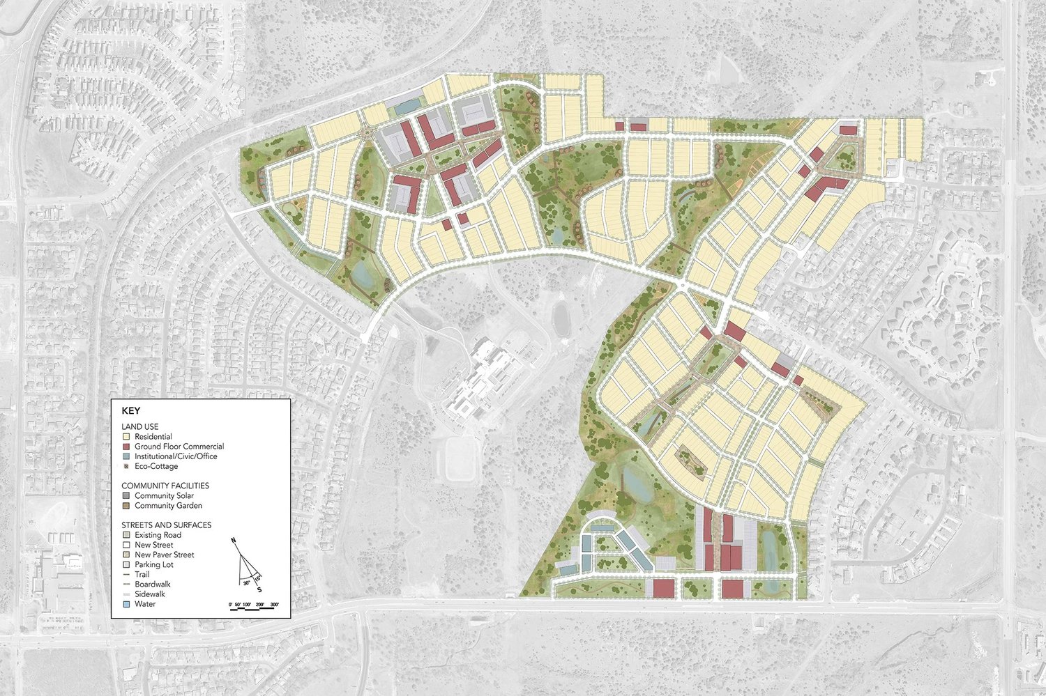
3. Colony Park Sustainable Community Breaks Ground

Colony Park Sustainable Community, a 3000-unit mixed-use project, is under construction at Loyola Lane between Johnny Morris Road and Decker Lane in Austin, Texas. Developed by Catellus Development Co...
📬 About This Newsletter
Groundbreak tracks real estate development across Austin. We use AI to find, research, and write about new projects so you don't have to.
View all articles on Groundbreak →
© 2026 Groundbreak. All rights reserved.
You're receiving this because you subscribed to Austin development updates.